Back to search results
  • Floor Plan
1 Rooms 3 beds 1 bath

£ 170,000.00

3 bed flat for sale Sold/Delisted

Address: ************

More information

Council tax band: A
Auction: No
Market Status: Sold/Delisted
Schools: ************
Transport: ************
HMO Status: Existing HMO
NEAR UNIVERSITY: YES (Dist: 0.75 miles)
NEAR TRAIN STATION: YES (Dist: 0.90 miles)
NEAR BUS STATION: YES (Dist: 0.50 miles)
NEAR HOSPITAL: NO (Dist: 1.50 miles)
About this property
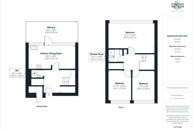
Currently functioning as a successful student let, this first floor maisonette offers versatile use with an 18ft sitting room that can serve as a third bedroom. The property features two double bedrooms, a ground floor WC, and a first floor shower room/WC. The kitchen includes space for white goods and a dining area, leading to a balcony overlooking green space. The property is leasehold with 90 years remaining on the lease, service charges of £51 per month, and ground rent of £10 per year. Located within 1.0 mile of multiple supermarkets, gyms, parks, shopping centres, and schools, and just 0.75 miles from the university, 0.90 miles from the train station, and 0.50 miles from the bus station.

insights

************

 Related properties

Nearby properties
9 bed block of flats for sale
BLOCK_OF_FLATS £ 350,000.00
Land for sale
LAND £ 325,000.00
5 bed semi-detached house for sale
SEMI_DETACHED £ 330,000.00
2 bed terraced house for sale
TERRACED £ 165,000.00
4 bed end terrace house for sale
END_TERRACE £ 300,000.00
Properties in same Property type
4 bed flat for sale
FLAT £ 450,000.00
3 bed flat for sale
FLAT £ 375,000.00
3 bed flat for sale
FLAT £ 270,000.00
5 bed flat for sale
FLAT £ 230,000.00
Agent Name: xxxx
Unlock Full Property Details!

Want to see the full address, agent contact, and more?

  • Full property address
  • Direct contact details for the agent
  • Exclusive photos and documents
  • Early access to new listings