Back to search results
1 Rooms 3 beds 3 bath

£ 399,950.00

3 bed flat for sale Sold/Delisted

Address: ************

More information

Auction: No
Market Status: Sold/Delisted
Schools: ************
Transport: ************
HMO Status: Existing HMO
NEAR UNIVERSITY: NO (Dist: 1.50 miles)
NEAR TRAIN STATION: YES (Dist: 0.75 miles)
NEAR BUS STATION: YES (Dist: 0.30 miles)
NEAR HOSPITAL: NO (Dist: 1.20 miles)
About this property
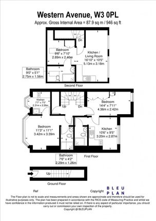
A first-floor flat offered for sale with the freehold to the entire building included. The property underwent a comprehensive refurbishment and loft conversion in 2016, reconfigured into three self-contained studio flats. These units have been let continuously since completion, generating a high-yielding rental income in excess of £3,300 per calendar month. The property benefits from gas central heating, double glazing, an allocated parking space, and comprehensive fire safety provisions. It is recommended for cash or investment buyers only due to potential mortgageability issues.

insights

************

 Related properties

Nearby properties
3 bed flat for sale
FLAT £ 399,950.00
3 bed property for sale
NONE £ 599,950.00
4 bed flat for sale
FLAT £ 575,000.00
7 bed property for sale
NONE £ 1,150,000.00
6 bed semi-detached house for sale
SEMI_DETACHED £ 900,000.00
Properties in same Property type
4 bed flat for sale
FLAT £ 450,000.00
3 bed flat for sale
FLAT £ 375,000.00
3 bed flat for sale
FLAT £ 270,000.00
5 bed flat for sale
FLAT £ 230,000.00
Agent Name: xxxx
Unlock Full Property Details!

Want to see the full address, agent contact, and more?

  • Full property address
  • Direct contact details for the agent
  • Exclusive photos and documents
  • Early access to new listings