Back to search results
  • Floor Plan
2 Rooms 3 beds 2 bath

£ 165,000.00

3 bed terraced house for sale For sale

Address: ************

More information

Auction: No
Market Status: For sale
Schools: ************
Transport: ************
HMO Status: HMO Conversion
NEAR UNIVERSITY: NO (Dist: 1.50 miles)
NEAR TRAIN STATION: YES (Dist: 0.75 miles)
NEAR BUS STATION: YES (Dist: 0.50 miles)
NEAR HOSPITAL: NO (Dist: 1.20 miles)
About this property
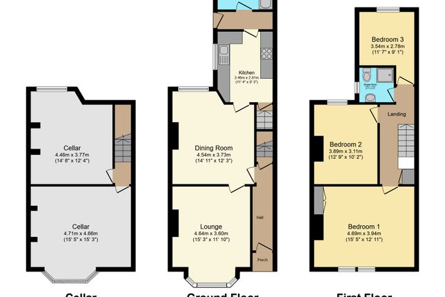
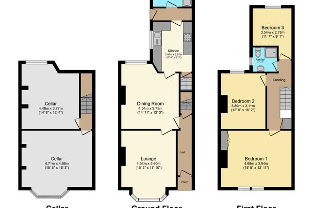
Terraced 3 Bedrooms 2 Bathrooms 2 Reception Rooms Freehold. This generously sized three-bedroom terraced home features a front-facing lounge, rear dining room with access to a fitted kitchen, and a ground floor bathroom. The first floor includes three well-proportioned bedrooms and a family shower room. The exterior offers a regular front garden, an enclosed rear courtyard with parking space, and front resident parking (permit required). The property is situated within walking distance to town centre amenities, excellent transport links, and local schools. It presents an opportunity for investors to convert into two self-contained flats or obtain an HMO.

insights

************

 Related properties

Nearby properties
11 bed flat for sale
FLAT £ 375,000.00
7 bed end terrace house for sale
END_TERRACE £ 180,000.00
5 bed terraced house for sale
TERRACED £ 220,000.00
5 bed flat for sale
FLAT £ 220,000.00
3 bed flat for sale
FLAT £ 349,995.00
Properties in same Property type
4 bed terraced house for sale
TERRACED £ 139,995.00
7 bed terraced house for sale
TERRACED £ 550,000.00
4 bed terraced house for sale
TERRACED £ 280,000.00
5 bed terraced house for sale
TERRACED £ 600,000.00
5 bed terraced house for sale
TERRACED £ 560,000.00
Agent Name: xxxx
Unlock Full Property Details!

Want to see the full address, agent contact, and more?

  • Full property address
  • Direct contact details for the agent
  • Exclusive photos and documents
  • Early access to new listings