Back to search results
  • Floor Plan
  • EPC Certificate
2 Rooms 4 beds 2 bath

£ 675,000.00

4 bed semi-detached house for sale For sale

Address: ************

More information

Market Status: For sale
Schools: ************
Transport: ************
About this property
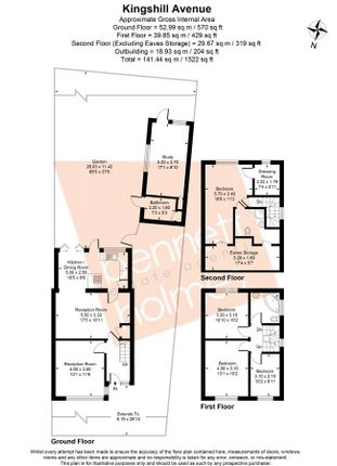
Extended four bedroom, two bathroom semi-detached house. The property measures over 1300 sq ft over three floors and is well presented throughout. Features include a rear extension, loft conversion, gas central heating, double glazed windows, off street parking, and an outbuilding in the garden with a bathroom. Accommodation includes two reception rooms, an open plan modern kitchen/diner, three bedrooms on the first floor, and a fourth bedroom with a dressing room and en suite shower room on the second floor. The rear garden is approximately 85 ft, mainly laid to lawn with a patio area. Currently rented out as an HMO.

insights

************

 Related properties

Nearby properties
4 bed terraced house for sale
TERRACED £ 525,000.00
4 bed semi-detached house for sale
SEMI_DETACHED £ 618,000.00
9 bed terraced house for sale
TERRACED £ 915,000.00
5 bed semi-detached house for sale
SEMI_DETACHED £ 575,000.00
5 bed terraced house for sale
TERRACED £ 410,000.00
Properties in same Property type
5 bed semi-detached house for sale
SEMI_DETACHED £ 825,000.00
7 bed semi-detached house for sale
SEMI_DETACHED £ 499,999.00
4 bed semi-detached house for sale
SEMI_DETACHED £ 729,950.00
6 bed semi-detached house for sale
SEMI_DETACHED £ 375,000.00
4 bed semi-detached house for sale
SEMI_DETACHED £ 210,000.00
Agent Name: xxxx
Unlock Full Property Details!

Want to see the full address, agent contact, and more?

  • Full property address
  • Direct contact details for the agent
  • Exclusive photos and documents
  • Early access to new listings