Back to search results
  • Floor Plan
  • EPC Certificate
2 Rooms 4 beds 2 bath

£ 265,000.00

4 bed semi-detached house for sale Sold/Delisted

Address: ************

More information

Market Status: Sold/Delisted
Schools: ************
Transport: ************
About this property
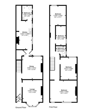
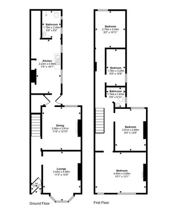
Freehold two floor semi-detached house requiring refurbishment with full vacant possession. The property is stripped back to bricks and nearly ready for a full refurbishment. Plans are available to convert it into a 6-bedroom HMO with full ensuite facilities or a 5-bedroom holiday let featuring one ground-floor ensuite and two first-floor bathrooms, subject to necessary planning permission and consents. Accommodation includes four bedrooms and a bathroom/WC on the first floor, and a hallway, lounge, dining room, kitchen (not fitted), utility area, and shower room/WC on the ground floor. Front and rear gardens are included. Auction sale scheduled for 15 April 2025. Multiple supermarkets, gyms, parks, shopping centres, and schools are located within 1.0 mile. The property is 0.75 miles from the university, 0.80 miles from the train station, and 0.50 miles from the bus station.

insights

************

 Related properties

Nearby properties
5 bed property for sale
NONE £ 230,000.00
3 bed semi-detached house for sale
SEMI_DETACHED £ 220,000.00
5 bed detached house for sale
DETACHED £ 450,000.00
3 bed property for sale
NONE £ 270,000.00
5 bed detached house for sale
DETACHED £ 325,000.00
Properties in same Property type
5 bed semi-detached house for sale
SEMI_DETACHED £ 825,000.00
7 bed semi-detached house for sale
SEMI_DETACHED £ 499,999.00
4 bed semi-detached house for sale
SEMI_DETACHED £ 729,950.00
6 bed semi-detached house for sale
SEMI_DETACHED £ 375,000.00
4 bed semi-detached house for sale
SEMI_DETACHED £ 210,000.00
Agent Name: xxxx
Unlock Full Property Details!

Want to see the full address, agent contact, and more?

  • Full property address
  • Direct contact details for the agent
  • Exclusive photos and documents
  • Early access to new listings