Back to search results
  • Floor Plan
  • EPC Certificate
1 Rooms 4 beds 1 bath

£ 139,950.00

4 bed terraced house for sale For sale

Address: ************

More information

Council tax band: A
Auction: No
Market Status: For sale
Schools: ************
Transport: ************
HMO Status: Existing HMO
NEAR UNIVERSITY: YES (Dist: 0.75 miles)
NEAR TRAIN STATION: NO (Dist: 1.20 miles)
NEAR BUS STATION: YES (Dist: 0.50 miles)
NEAR HOSPITAL: YES (Dist: 0.90 miles)
About this property
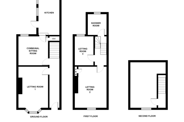
4 bedroom HMO with historic use. This middle terraced house offers a great investment opportunity comprising 4 letting rooms (currently empty but potential to achieve income of £18,600 per annum). The property has had some upgrading carried out recently, benefiting from gas central heating and uPVC double glazing. The accommodation includes an entrance hall, ground floor letting room, communal sitting room, and fitted kitchen. On the first floor, there are 2 further letting rooms and a shower room, with a 4th letting room on the second floor. Outside, there is a garden area to the front and a courtyard to the rear. Multiple supermarkets within 1.0 mile, near university (0.75 miles), near bus station (0.50 miles), and near hospital (0.90 miles).

insights

************

 Related properties

Nearby properties
8 bed terraced house for sale
TERRACED £ 195,000.00
6 bed property for sale
NONE £ 175,000.00
7 bed terraced house for sale
TERRACED £ 215,000.00
6 bed property for sale
NONE £ 235,000.00
4 bed terraced house for sale
TERRACED £ 140,000.00
Properties in same Property type
4 bed terraced house for sale
TERRACED £ 139,995.00
7 bed terraced house for sale
TERRACED £ 550,000.00
4 bed terraced house for sale
TERRACED £ 280,000.00
5 bed terraced house for sale
TERRACED £ 600,000.00
5 bed terraced house for sale
TERRACED £ 560,000.00
Agent Name: xxxx
Unlock Full Property Details!

Want to see the full address, agent contact, and more?

  • Full property address
  • Direct contact details for the agent
  • Exclusive photos and documents
  • Early access to new listings