Back to search results
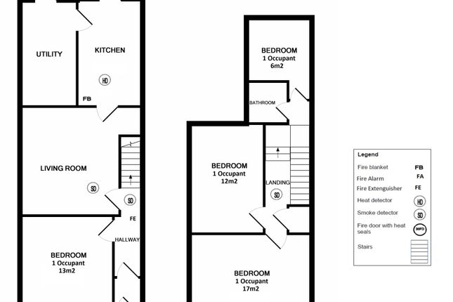
  • Floor Plan
  • EPC Certificate
1 Rooms 4 beds 2 bath

£ 440,000.00

4 bed terraced house for sale Sold/Delisted

Address: ************

More information

Auction: No
Market Status: Sold/Delisted
Schools: ************
Transport: ************
HMO Status: Existing HMO
NEAR UNIVERSITY: YES (Dist: 0.75 miles)
NEAR TRAIN STATION: YES (Dist: 0.90 miles)
NEAR BUS STATION: YES (Dist: 0.50 miles)
NEAR HOSPITAL: NO (Dist: 1.50 miles)
About this property
This well presented Victorian terraced 4 bedroom property features a lounge with dining area, a fully fitted kitchen, and 2 shower rooms. The property benefits from gas central heating and front and rear gardens with on street parking. The rental for this property is set at £600 per person per calendar month, producing an annual income of £27,600 and a gross yield of 6.27%. The contract is for 11.5 months commencing 1st August 2025 to 15th July 2026.

insights

************

 Related properties

Nearby properties
5 bed terraced house for sale
TERRACED £ 525,000.00
4 bed terraced house for sale
TERRACED £ 440,000.00
6 bed terraced house for sale
TERRACED £ 550,000.00
5 bed terraced house for sale
TERRACED £ 400,000.00
4 bed end terrace house for sale
END_TERRACE £ 450,000.00
Properties in same Property type
4 bed terraced house for sale
TERRACED £ 139,995.00
7 bed terraced house for sale
TERRACED £ 550,000.00
4 bed terraced house for sale
TERRACED £ 280,000.00
5 bed terraced house for sale
TERRACED £ 600,000.00
5 bed terraced house for sale
TERRACED £ 560,000.00
Agent Name: xxxx
Unlock Full Property Details!

Want to see the full address, agent contact, and more?

  • Full property address
  • Direct contact details for the agent
  • Exclusive photos and documents
  • Early access to new listings