Back to search results
  • Floor Plan
  • EPC Certificate
1 Rooms 4 beds 2 bath

£ 99,950.00

4 bed terraced house for sale Sold/Delisted

Address: ************

More information

Council tax band: A
Auction: No
Market Status: Sold/Delisted
Schools: ************
Transport: ************
HMO Status: Existing HMO
NEAR UNIVERSITY: NO (Dist: 1.50 miles)
NEAR TRAIN STATION: YES (Dist: 0.75 miles)
NEAR BUS STATION: YES (Dist: 0.50 miles)
NEAR HOSPITAL: NO (Dist: 1.20 miles)
About this property
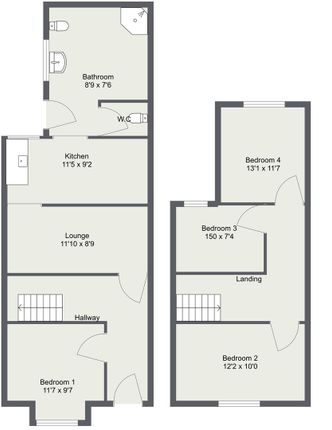
This converted 4 bedroom HMO property is offered for sale with no chain. Currently partly tenanted, it achieves an approximate annual rent of £24,000, making it an ideal investment for buyers seeking their first HMO venture. The property features an entrance hallway, a downstairs bedroom, a living area with comfortable sofas, a fitted kitchen with appliances, a downstairs W.C., and a bathroom with a shower cubicle. The first floor includes 3 additional double bedrooms. Externally, there are low maintenance gardens to the front and rear, with the rear garden surrounded by 6ft fencing and mainly paved. Located within 1.0 mile of multiple supermarkets, gyms, parks, shopping centres, and schools, and just 0.75 miles from the nearest train station and 0.50 miles from the nearest bus station.

insights

************

 Related properties

Nearby properties
6 bed terraced house for sale
TERRACED £ 125,000.00
5 bed semi-detached house for sale
SEMI_DETACHED £ 295,000.00
Properties in same Property type
4 bed terraced house for sale
TERRACED £ 139,995.00
7 bed terraced house for sale
TERRACED £ 550,000.00
4 bed terraced house for sale
TERRACED £ 280,000.00
5 bed terraced house for sale
TERRACED £ 600,000.00
5 bed terraced house for sale
TERRACED £ 560,000.00
Agent Name: xxxx
Unlock Full Property Details!

Want to see the full address, agent contact, and more?

  • Full property address
  • Direct contact details for the agent
  • Exclusive photos and documents
  • Early access to new listings