Back to search results
  • Floor Plan
1 Rooms 5 beds 2 bath

£ 375,000.00

5 bed maisonette for sale Sold/Delisted

Address: ************

More information

Council tax band: B
Auction: No
Market Status: Sold/Delisted
Schools: ************
Transport: ************
HMO Status: Existing HMO
NEAR UNIVERSITY: YES (Dist: 0.75 miles)
NEAR TRAIN STATION: YES (Dist: 0.80 miles)
NEAR BUS STATION: YES (Dist: 0.50 miles)
NEAR HOSPITAL: NO (Dist: 1.50 miles)
About this property
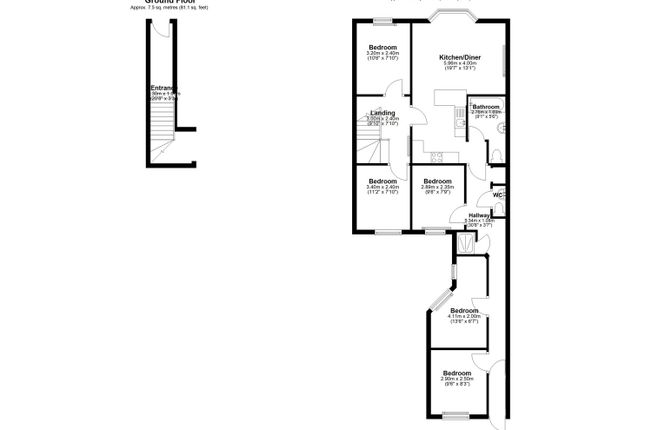
This spacious upper floor five-bedroom licensed HMO is tenanted until July 2026, generating £31,200 per annum, representing a gross rental yield of 8.3%. The property features a well-thought-out layout with two double bedrooms off the main landing leading to a large open-plan kitchen and living area. The lounge has a south-facing bay window and is furnished with sofas and a flat-screen TV, connecting to a fully fitted kitchen with a breakfast bar island. There are three additional double bedrooms, each fully furnished. The property includes a main bathroom, a separate shower room, and an additional WC. A loft space may offer further potential, subject to necessary consents. Externally, there is a private rear yard and store with access to the rear lane. The property is located near multiple supermarkets, gyms, parks, shopping centres, and schools.

insights

************

 Related properties

Nearby properties
9 bed terraced house for sale
TERRACED £ 700,000.00
5 bed flat for sale
FLAT £ 375,000.00
7 bed maisonette for sale
MAISONETTE £ 475,000.00
8 bed terraced house for sale
TERRACED £ 975,000.00
6 bed terraced house for sale
TERRACED £ 650,000.00
Properties in same Property type
3 bed maisonette for sale
MAISONETTE £ 550,000.00
3 bed maisonette for sale
MAISONETTE £ 160,000.00
4 bed maisonette for sale
MAISONETTE £ 439,000.00
5 bed maisonette for sale
MAISONETTE £ 115,000.00
5 bed maisonette for sale
MAISONETTE £ 240,000.00
Agent Name: xxxx
Unlock Full Property Details!

Want to see the full address, agent contact, and more?

  • Full property address
  • Direct contact details for the agent
  • Exclusive photos and documents
  • Early access to new listings