Back to search results
2 Rooms 5 beds 2 bath

£ 600,000.00

5 bed property for sale Sold/Delisted

Address: ************

More information

Market Status: Sold/Delisted
Schools: ************
About this property
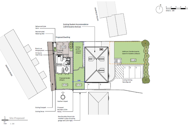
This is a superb opportunity to purchase a chain-free, large, double-fronted family home currently utilised as a licensed house of multiple occupancy (HMO) letting to students grossing £3500 per calendar month. The property has planning permission for a two-bedroom detached dwelling in the rear garden. It can provide income from existing tenants while offering the option to build the dwelling to generate further income or convert back to a family home with an annexe. The property features an entrance vestibule, hallway, seven bedrooms, a family bathroom, a separate cloakroom/WC, a kitchen with a breakfast room, and a laundry/utility area. Externally, there is ample parking for five vehicles, a garage, and a rear garden mainly laid to lawn. The property is located within approximately 1 mile of multiple supermarkets, gyms, parks, shopping centres, and schools, with a university just 0.50 miles away, a train station 0.80 miles away, and a bus station 0.60 miles away.

insights

************

 Related properties

Nearby properties
6 bed detached house for sale
DETACHED £ 650,000.00
10 bed semi-detached house for sale
SEMI_DETACHED £ 400,000.00
4 bed terraced house for sale
TERRACED £ 350,000.00
5 bed terraced house for sale
TERRACED £ 395,000.00
3 bed terraced house for sale
TERRACED £ 345,000.00
Agent Name: xxxx
Unlock Full Property Details!

Want to see the full address, agent contact, and more?

  • Full property address
  • Direct contact details for the agent
  • Exclusive photos and documents
  • Early access to new listings