Back to search results
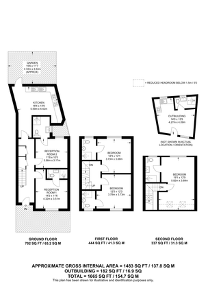
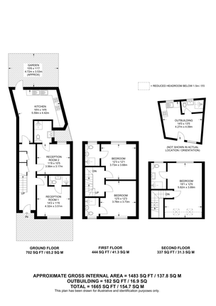
  • Floor Plan
Rooms 5 beds 0 bath

£ 850,000.00

5 bed terraced house for sale Sold/Delisted

Address: ************

More information

Auction: No
Market Status: Sold/Delisted
Schools: ************
Transport: ************
HMO Status: Existing HMO
NEAR UNIVERSITY: NO (Dist: 2.50 miles)
NEAR TRAIN STATION: YES (Dist: 0.75 miles)
NEAR BUS STATION: YES (Dist: 0.30 miles)
NEAR HOSPITAL: NO (Dist: 1.20 miles)
About this property
This fully refurbished 3-storey freehold HMO offers 5 self-contained bedrooms, each with en suite bathrooms, a shared modern kitchen, a private garden with an outbuilding, and off-street parking. The estimated rental value is £60-72,000 p.a. Multiple supermarkets are located within 1.0 mile, and the nearest underground station is approximately 0.75 miles away.

insights

************

 Related properties

Nearby properties
5 bed terraced house for sale
TERRACED £ 795,000.00
5 bed semi-detached house for sale
SEMI_DETACHED £ 749,995.00
3 bed terraced house for sale
TERRACED £ 625,000.00
5 bed terraced house for sale
TERRACED £ 645,000.00
5 bed terraced house for sale
TERRACED £ 790,000.00
Properties in same Property type
4 bed terraced house for sale
TERRACED £ 139,995.00
7 bed terraced house for sale
TERRACED £ 550,000.00
4 bed terraced house for sale
TERRACED £ 280,000.00
5 bed terraced house for sale
TERRACED £ 600,000.00
5 bed terraced house for sale
TERRACED £ 560,000.00
Agent Name: xxxx
Unlock Full Property Details!

Want to see the full address, agent contact, and more?

  • Full property address
  • Direct contact details for the agent
  • Exclusive photos and documents
  • Early access to new listings