Back to search results
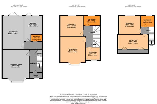
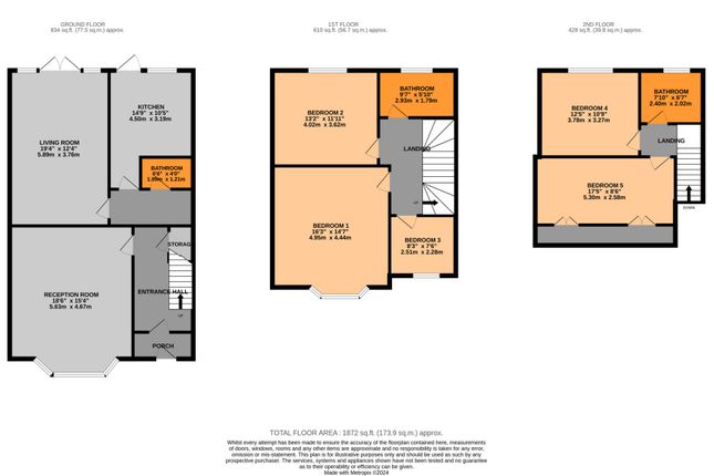
  • Floor Plan
  • EPC Certificate
2 Rooms 5 beds 3 bath

£ 650,000.00

5 bed terraced house for sale Sold/Delisted

Address: ************

More information

Auction: No
Market Status: Sold/Delisted
Schools: ************
Transport: ************
HMO Status: HMO Conversion
NEAR UNIVERSITY: NO (Dist: 1.50 miles)
NEAR TRAIN STATION: YES (Dist: 0.80 miles)
NEAR BUS STATION: YES (Dist: 0.50 miles)
NEAR HOSPITAL: NO (Dist: 1.20 miles)
About this property
This terraced house boasts five generously sized bedrooms, making it ideal for a growing family or an investor. Currently tenanted, it generates a steady income of £2,800 per calendar month. The property presents an exciting opportunity for renovation and conversion into a House in Multiple Occupation (HMO), allowing for increased rental yields. The spacious interior awaits personal touch, with a well-proportioned living area and a kitchen that offers ample space for culinary endeavors. The five sizable bedrooms can be transformed into cozy havens with some renovation. Outside, the property features a garden and a driveway accommodating parking for two cars. Located within walking distance of a train station, it offers excellent connectivity to central London. Multiple supermarkets, gyms, parks, shopping centres, and schools are within 1.0 mile, enhancing its appeal for potential tenants.

insights

************

 Related properties

Nearby properties
4 bed terraced house for sale
TERRACED £ 625,000.00
6 bed semi-detached house for sale
SEMI_DETACHED £ 949,950.00
6 bed flat for sale
FLAT £ 1,000,000.00
5 bed semi-detached house for sale
SEMI_DETACHED £ 849,999.00
6 bed terraced house for sale
TERRACED £ 600,000.00
Properties in same Property type
4 bed terraced house for sale
TERRACED £ 139,995.00
7 bed terraced house for sale
TERRACED £ 550,000.00
4 bed terraced house for sale
TERRACED £ 280,000.00
5 bed terraced house for sale
TERRACED £ 600,000.00
5 bed terraced house for sale
TERRACED £ 560,000.00
Agent Name: xxxx
Unlock Full Property Details!

Want to see the full address, agent contact, and more?

  • Full property address
  • Direct contact details for the agent
  • Exclusive photos and documents
  • Early access to new listings