Back to search results
  • Floor Plan
  • EPC Certificate
2 Rooms 6 beds 3 bath

£ 350,000.00

6 bed semi-detached house for sale Sold/Delisted

Address: ************

More information

Market Status: Sold/Delisted
Schools: ************
Transport: ************
About this property
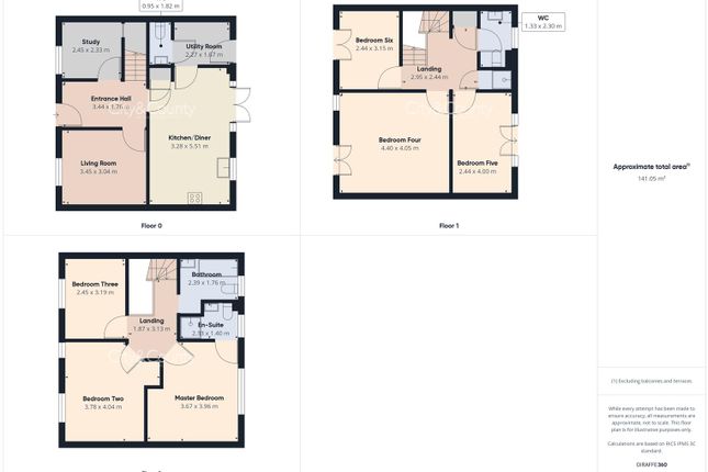
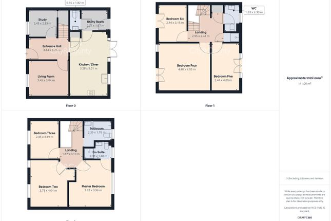
An excellent investment opportunity, this six-bedroom semi-detached townhouse comes with a renewable HMO licence, making it ideal for investors seeking a ready-to-go rental option. The property features a recently refitted kitchen and requires minimal work to achieve a high rental standard. It includes a spacious entrance hall, a cosy living room, a separate study, and an expansive kitchen/dining room with a breakfast bar. The utility room provides additional space and leads to a downstairs WC. The first floor hosts three bedrooms and a shower room, while the second floor includes three more well-proportioned bedrooms, one with an en suite. The enclosed rear garden offers patio seating and lawn, perfect for outdoor gatherings. Off-road parking is available with a tarmac driveway leading to a single garage. Located close to multiple supermarkets, gyms, parks, and schools, this property combines practicality with potential.

insights

************

 Related properties

Nearby properties
6 bed semi-detached house for sale
SEMI_DETACHED £ 350,000.00
5 bed detached house for sale
DETACHED £ 375,000.00
4 bed terraced house for sale
TERRACED £ 230,000.00
3 bed semi-detached house for sale
SEMI_DETACHED £ 225,000.00
5 bed detached house for sale
DETACHED £ 975,000.00
Properties in same Property type
5 bed semi-detached house for sale
SEMI_DETACHED £ 825,000.00
7 bed semi-detached house for sale
SEMI_DETACHED £ 499,999.00
4 bed semi-detached house for sale
SEMI_DETACHED £ 729,950.00
6 bed semi-detached house for sale
SEMI_DETACHED £ 375,000.00
4 bed semi-detached house for sale
SEMI_DETACHED £ 210,000.00
Agent Name: xxxx
Unlock Full Property Details!

Want to see the full address, agent contact, and more?

  • Full property address
  • Direct contact details for the agent
  • Exclusive photos and documents
  • Early access to new listings