Back to search results
  • Floor Plan
  • EPC Certificate
2 Rooms 6 beds 2 bath

£ 420,000.00

6 bed terraced house for sale Sold/Delisted

Address: ************

More information

Council tax band: D
Auction: No
Market Status: Sold/Delisted
Schools: ************
Transport: ************
HMO Status: HMO Conversion
NEAR UNIVERSITY: YES (Dist: 0.85 miles)
NEAR TRAIN STATION: YES (Dist: 0.75 miles)
NEAR BUS STATION: YES (Dist: 0.50 miles)
NEAR HOSPITAL: YES (Dist: 0.90 miles)
About this property
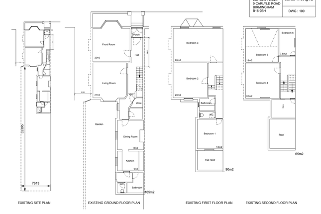
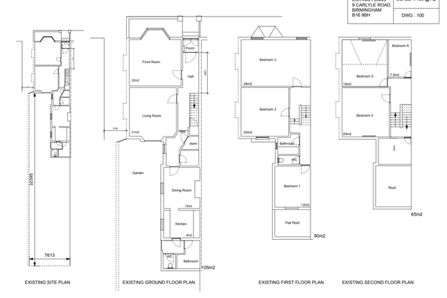
This spacious six-bedroom terraced home is set over three floors and offers significant investment potential, particularly for HMO conversion. The ground floor includes a bright front room, a spacious living room, a separate dining area, a well-sized kitchen, a bathroom, and additional storage. The first floor features three generously sized bedrooms, a family bathroom, and a separate WC. The second floor has three additional bedrooms and a storage area. A rear patio garden provides private outdoor space. The property is close to multiple supermarkets, gyms, parks, shopping centres, and schools.

insights

************

 Related properties

Nearby properties
9 bed detached house for sale
DETACHED £ 500,000.00
6 bed terraced house for sale
TERRACED £ 410,000.00
5 bed terraced house for sale
TERRACED £ 370,000.00
6 bed property for sale
NONE £ 339,950.00
6 bed semi-detached house for sale
SEMI_DETACHED £ 350,000.00
Properties in same Property type
4 bed terraced house for sale
TERRACED £ 139,995.00
7 bed terraced house for sale
TERRACED £ 550,000.00
4 bed terraced house for sale
TERRACED £ 280,000.00
5 bed terraced house for sale
TERRACED £ 600,000.00
5 bed terraced house for sale
TERRACED £ 560,000.00
Agent Name: xxxx
Unlock Full Property Details!

Want to see the full address, agent contact, and more?

  • Full property address
  • Direct contact details for the agent
  • Exclusive photos and documents
  • Early access to new listings