Back to search results
  • Floor Plan
2 Rooms 6 beds 4 bath

£ 275,000.00

6 bed terraced house for sale Sold/Delisted

Address: ************

More information

Auction: No
Market Status: Sold/Delisted
Schools: ************
Transport: ************
HMO Status: HMO Renovation
NEAR UNIVERSITY: NO (Dist: 1.50 miles)
NEAR TRAIN STATION: YES (Dist: 0.75 miles)
NEAR BUS STATION: YES (Dist: 0.30 miles)
NEAR HOSPITAL: NO (Dist: 1.20 miles)
About this property
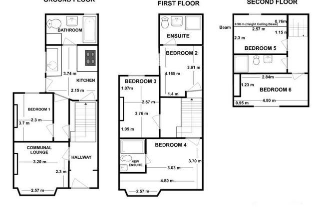
Great investment opportunity. This 6-bedroom property has been refurbished and consists of 2 en suite rooms and 4 rooms with 2 sharing bathroom facilities. There are 2 lounge areas and a modern kitchen equipped with all appliances and a double oven. To the rear, there is a large yard. Currently tenanted on a 3-year lease paying £1800pcm. The property is close to travel links and within walking distance to local amenities, including multiple supermarkets, gyms, parks, and shopping centres. The property has previously been registered as an HMO but currently does not have a licence as it is unoccupied, so due diligence on licensing in the area is advised.

insights

************

 Related properties

Nearby properties
9 bed flat for sale
FLAT £ 570,000.00
9 bed semi-detached house for sale
SEMI_DETACHED £ 450,000.00
6 bed terraced house for sale
TERRACED £ 270,000.00
4 bed terraced house for sale
TERRACED £ 180,000.00
7 bed property for sale
NONE £ 250,000.00
Properties in same Property type
4 bed terraced house for sale
TERRACED £ 139,995.00
7 bed terraced house for sale
TERRACED £ 550,000.00
4 bed terraced house for sale
TERRACED £ 280,000.00
5 bed terraced house for sale
TERRACED £ 600,000.00
5 bed terraced house for sale
TERRACED £ 560,000.00
Agent Name: xxxx
Unlock Full Property Details!

Want to see the full address, agent contact, and more?

  • Full property address
  • Direct contact details for the agent
  • Exclusive photos and documents
  • Early access to new listings