Back to search results
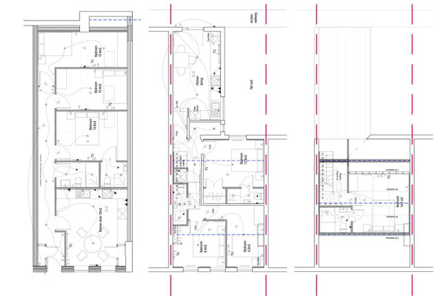
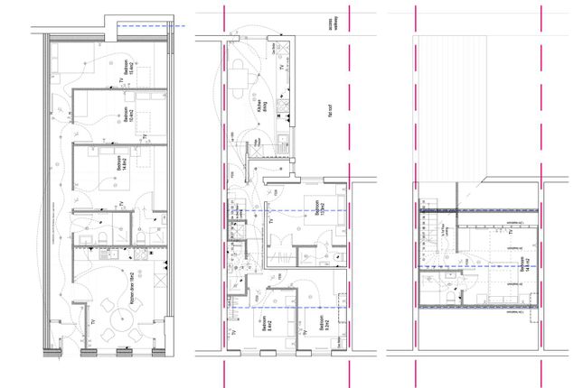
  • Floor Plan
2 Rooms 7 beds 5 bath

£ 495,000.00

7 bed property for sale Sold/Delisted

Address: ************

More information

Council tax band: A
Auction: Yes
Market Status: Sold/Delisted
Schools: ************
Transport: ************
HMO Status: Existing HMO
NEAR UNIVERSITY: YES (Dist: 0.75 miles)
NEAR TRAIN STATION: YES (Dist: 0.80 miles)
NEAR BUS STATION: YES (Dist: 0.50 miles)
NEAR HOSPITAL: NO (Dist: 1.50 miles)
About this property
Freehold investment opportunity comprising a block of 2 x HMO licensed self-contained flats (1603 Sq Ft) producing £57,180 per annum. The property includes a 3-bedroom ground floor flat (871 Sq Ft) and a 4-bedroom maisonette (431 Sq Ft) on the upper floors. Both flats are newly and fully licensed to current HMO standards. The investment is in excellent decorative order and is sold subject to existing tenancies. The ground floor flat is let on an AST to a single group of students producing £1995 pcm, while the first floor flat is let on an AST to a single group of students producing £2770 pcm. Total income is £4765 pcm. The property is located within close proximity to multiple supermarkets, gyms, parks, shopping centres, and schools, and is near the university (0.75 miles), train station (0.80 miles), and bus station (0.50 miles). Auction date is set for Wednesday 12th February 2025.

insights

************

 Related properties

Nearby properties
7 bed property for sale
NONE £ 500,000.00
5 bed terraced house for sale
TERRACED £ 395,000.00
4 bed end terrace house for sale
END_TERRACE £ 375,000.00
4 bed semi-detached house for sale
SEMI_DETACHED £ 450,000.00
6 bed terraced house for sale
TERRACED £ 450,000.00
Properties in same Property type
3 bed property for sale
NONE £ 230,000.00
5 bed property for sale
NONE £ 165,000.00
5 bed property for sale
NONE £ 200,000.00
Agent Name: xxxx
Unlock Full Property Details!

Want to see the full address, agent contact, and more?

  • Full property address
  • Direct contact details for the agent
  • Exclusive photos and documents
  • Early access to new listings