Back to search results
  • Floor Plan
1 Rooms 7 beds 2 bath

£ 700,000.00

7 bed terraced house for sale Sold/Delisted

Address: ************

More information

Council tax band: C
Auction: No
Market Status: Sold/Delisted
Schools: ************
Transport: ************
HMO Status: Existing HMO
NEAR UNIVERSITY: NO (Dist: 2.50 miles)
NEAR TRAIN STATION: YES (Dist: 0.50 miles)
NEAR BUS STATION: YES (Dist: 0.30 miles)
NEAR HOSPITAL: NO (Dist: 1.20 miles)
About this property
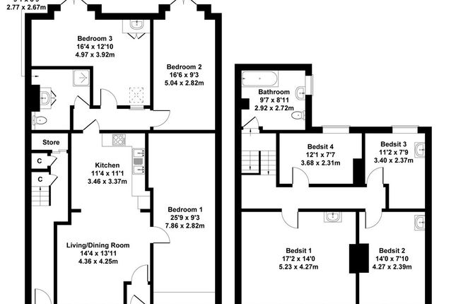
Offered with no onward chain, this freehold investment opportunity comprises two self-contained units: a spacious three-bedroom ground floor maisonette with a private garden, and a first-floor HMO licensed unit with four bedsits. The three-bedroom maisonette offers approximately 1,000 sq. ft. of living space, featuring a bright open-plan lounge and kitchen, three well-proportioned double bedrooms, and access to a low-maintenance paved garden. The first-floor accommodation consists of four individual bedsits, each with running water and permission for individual kitchenettes, along with a shared bathroom. The unit holds an active HMO licence, ensuring immediate investment potential. Potential rental income is estimated at £2,400 pcm for the maisonette and £1,000 - £1,200 pcm per room for the HMO unit, potentially fetching approximately £80,000 - £83,000 per annum once modernised. Multiple supermarkets, gyms, parks, shopping centres, and schools are located within 1.0 mile. The property is ideally suited to cash buyers, though buyers considering mortgage finance should confirm suitability with their lender prior to proceeding.

insights

************

 Related properties

Nearby properties
6 bed semi-detached house for sale
SEMI_DETACHED £ 625,000.00
5 bed semi-detached house for sale
SEMI_DETACHED £ 625,000.00
9 bed semi-detached house for sale
SEMI_DETACHED £ 850,000.00
7 bed end terrace house for sale
END_TERRACE £ 799,950.00
5 bed semi-detached house for sale
SEMI_DETACHED £ 699,950.00
Properties in same Property type
4 bed terraced house for sale
TERRACED £ 139,995.00
7 bed terraced house for sale
TERRACED £ 550,000.00
4 bed terraced house for sale
TERRACED £ 280,000.00
5 bed terraced house for sale
TERRACED £ 600,000.00
5 bed terraced house for sale
TERRACED £ 560,000.00
Agent Name: xxxx
Unlock Full Property Details!

Want to see the full address, agent contact, and more?

  • Full property address
  • Direct contact details for the agent
  • Exclusive photos and documents
  • Early access to new listings