Back to search results
  • Floor Plan
Rooms 8 beds 0 bath

£ 450,000.00

8 bed semi-detached house for sale Sold/Delisted

Address: ************

More information

Market Status: Sold/Delisted
Schools: ************
Transport: ************
About this property
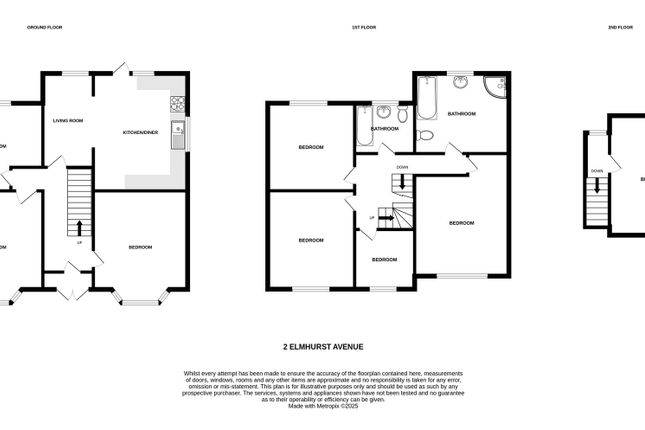
A significantly extended semi-detached property currently configured as an 8-bedroom House in Multiple Occupation (HMO), generating an impressive £52,800 per annum. Offered for sale with vacant possession, this property presents an exceptional opportunity to add value and boost rental returns, with the potential to achieve circa £62,800 per annum following cosmetic enhancements. The ground floor accommodation comprises an entrance hall, an open-plan kitchen/dining/living room, three double bedrooms, and a bathroom. On the first floor are four further bedrooms and a large bathroom, while the converted loft space provides the final bedroom. The property benefits from off-street parking via a private driveway and a low-maintenance rear garden. It is conveniently located near multiple supermarkets, gyms, parks, shopping centres, and schools, with strong tenant demand and excellent access to local amenities and transport links. This property is due to feature in an online auction.

insights

************

 Related properties

Nearby properties
4 bed property for sale
NONE £ 500,000.00
5 bed terraced house for sale
TERRACED £ 365,000.00
6 bed end terrace house for sale
END_TERRACE £ 400,000.00
6 bed terraced house for sale
TERRACED £ 465,000.00
6 bed terraced house for sale
TERRACED £ 425,000.00
Properties in same Property type
5 bed semi-detached house for sale
SEMI_DETACHED £ 825,000.00
7 bed semi-detached house for sale
SEMI_DETACHED £ 499,999.00
4 bed semi-detached house for sale
SEMI_DETACHED £ 210,000.00
5 bed semi-detached house for sale
SEMI_DETACHED £ 450,000.00
5 bed semi-detached house for sale
SEMI_DETACHED £ 650,000.00
Agent Name: xxxx
Unlock Full Property Details!

Want to see the full address, agent contact, and more?

  • Full property address
  • Direct contact details for the agent
  • Exclusive photos and documents
  • Early access to new listings