Back to search results
  • Floor Plan
2 Rooms 8 beds 8 bath

£ 290,000.00

8 bed terraced house for sale Sold/Delisted

Address: ************

More information

Council tax band: B
Auction: No
Market Status: Sold/Delisted
Schools: ************
Transport: ************
HMO Status: Existing HMO
NEAR UNIVERSITY: YES (Dist: 0.75 miles)
NEAR TRAIN STATION: YES (Dist: 0.50 miles)
NEAR BUS STATION: YES (Dist: 0.30 miles)
NEAR HOSPITAL: YES (Dist: 0.90 miles)
About this property
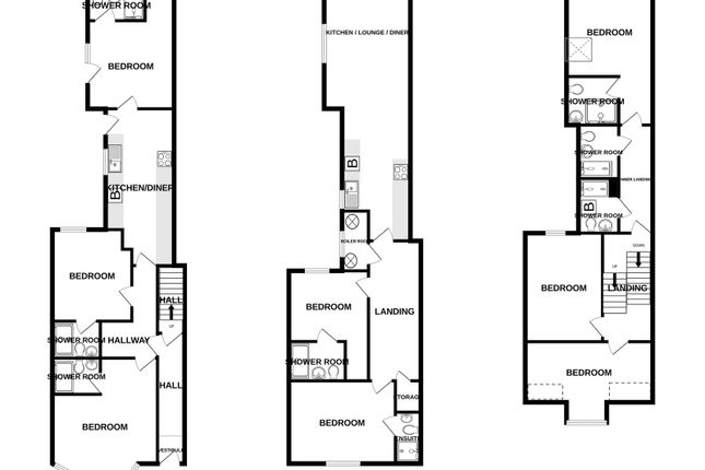
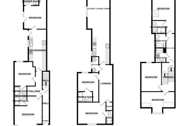
A must see property currently split into two flats: a ground floor flat and an upper floor flat. The ground floor flat features a communal kitchen/lounge/diner, three bedrooms with ensuites. The upper floor flat includes a communal kitchen/diner/lounge, five bedrooms, and five shower rooms/wc. The property has two gas central heating boilers, gas boilers for hot water, PVCU double glazing, off-street parking, and a rear yard. The property is on a single freehold and has the requisite HMO licences in place.

insights

************

 Related properties

Nearby properties
3 bed terraced house for sale
TERRACED £ 110,000.00
5 bed terraced house for sale
TERRACED £ 155,000.00
6 bed terraced house for sale
TERRACED £ 100,000.00
5 bed property for sale
NONE £ 165,000.00
4 bed end terrace house for sale
END_TERRACE £ 180,000.00
Properties in same Property type
4 bed terraced house for sale
TERRACED £ 139,995.00
7 bed terraced house for sale
TERRACED £ 550,000.00
4 bed terraced house for sale
TERRACED £ 280,000.00
5 bed terraced house for sale
TERRACED £ 600,000.00
5 bed terraced house for sale
TERRACED £ 560,000.00
Agent Name: xxxx
Unlock Full Property Details!

Want to see the full address, agent contact, and more?

  • Full property address
  • Direct contact details for the agent
  • Exclusive photos and documents
  • Early access to new listings