Back to search results
  • Floor Plan
3 Rooms 9 beds 9 bath

£ 800,000.00

9 bed property for sale Sold/Delisted

Address: ************

More information

Auction: No
Market Status: Sold/Delisted
Schools: ************
Transport: ************
HMO Status: HMO Conversion
NEAR UNIVERSITY: YES (Dist: 0.75 miles)
NEAR TRAIN STATION: YES (Dist: 0.80 miles)
NEAR BUS STATION: YES (Dist: 0.50 miles)
NEAR HOSPITAL: NO (Dist: 1.20 miles)
About this property
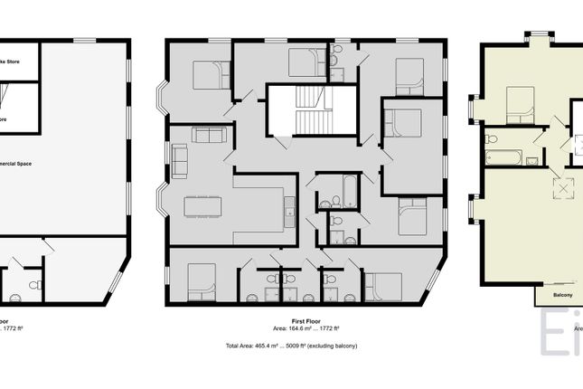
Planning consent has been granted to convert the former Freebutt pub into a 7-bedroom HMO on the first floor (Sui Generis), along with a replacement commercial unit on the ground floor and two separate one-bedroom flats at the roof level. The property is located near multiple supermarkets, gyms, parks, shopping centres, and schools, with excellent transport links to the city centre and university campuses, making it an attractive investment opportunity for high-end HMO rental.

insights

************

 Related properties

Nearby properties
5 bed property for sale
NONE £ 500,000.00
4 bed end terrace house for sale
END_TERRACE £ 575,000.00
4 bed terraced house for sale
TERRACED £ 475,000.00
6 bed terraced house for sale
TERRACED £ 525,000.00
3 bed maisonette for sale
MAISONETTE £ 450,000.00
Properties in same Property type
3 bed property for sale
NONE £ 230,000.00
5 bed property for sale
NONE £ 165,000.00
5 bed property for sale
NONE £ 200,000.00
Agent Name: xxxx
Unlock Full Property Details!

Want to see the full address, agent contact, and more?

  • Full property address
  • Direct contact details for the agent
  • Exclusive photos and documents
  • Early access to new listings