Back to search results
Rooms beds 0 bath

£ 125,000.00

Land for sale Sold/Delisted

Address: ************

More information

Auction: Yes
Market Status: Sold/Delisted
Schools: ************
Transport: ************
HMO Status: HMO Conversion
NEAR UNIVERSITY: YES (Dist: 0.85 miles)
NEAR TRAIN STATION: YES (Dist: 0.75 miles)
NEAR BUS STATION: YES (Dist: 0.50 miles)
NEAR HOSPITAL: YES (Dist: 0.90 miles)
About this property
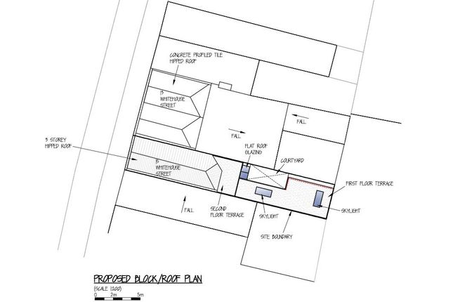
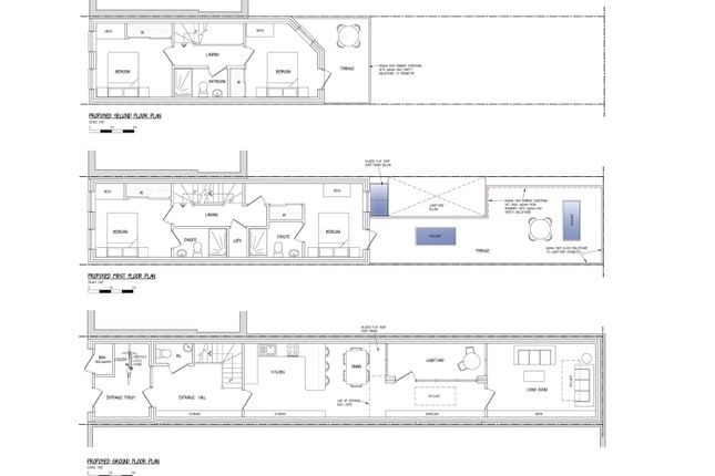
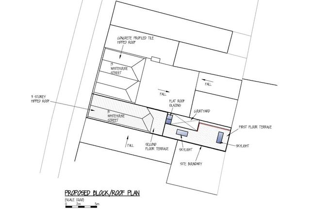
A freehold development site with planning permission granted for the construction of a stylish three-storey, four-bedroom townhouse. The approved design includes a private courtyard garden and a roof terrace. The site is situated in an area undergoing major regeneration, just a short distance from the city centre. There may also be scope to amend the current planning consent for alternative schemes such as an HMO or conversion into flats (subject to necessary consents). This property is due to feature in an online auction on 24 July 2025 at 6.00pm. Bidding is via proxy, telephone or online remote bidding. The proposed house will comprise of an entrance hall, cloakroom, and an open-plan kitchen/dining/living room surrounding a courtyard. The first floor will provide two double bedrooms (both with en-suites) and a generous roof terrace, while the second floor will consist of a further two double bedrooms and a bathroom.

insights

************

 Related properties

Nearby properties
6 bed terraced house for sale
TERRACED £ 875,000.00
3 bed maisonette for sale
MAISONETTE £ 175,000.00
15 bed semi-detached house for sale
SEMI_DETACHED £ 1,250,000.00
7 bed terraced house for sale
TERRACED £ 775,000.00
7 bed terraced house for sale
TERRACED £ 550,000.00
Properties in same Property type
Land for sale
LAND £ 3,000,000.00
Land for sale
LAND £ 1,250,000.00
Land for sale
LAND £ 265,000.00
Land for sale
LAND £ 75,000.00
Land for sale
LAND £ 325,000.00
Agent Name: xxxx
Unlock Full Property Details!

Want to see the full address, agent contact, and more?

  • Full property address
  • Direct contact details for the agent
  • Exclusive photos and documents
  • Early access to new listings