Back to search results
  • Floor Plan
  • EPC Certificate
Rooms beds 0 bath

£ 1,750,000.00

Land for sale Sold/Delisted

Address: ************

More information

Auction: No
Market Status: Sold/Delisted
Schools: ************
Transport: ************
HMO Status: HMO Conversion
NEAR UNIVERSITY: NO (Dist: 3.50 miles)
NEAR TRAIN STATION: YES (Dist: 0.75 miles)
NEAR BUS STATION: YES (Dist: 0.30 miles)
NEAR HOSPITAL: NO (Dist: 1.20 miles)
About this property
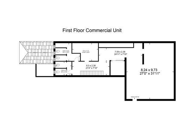
Large Freehold Shop For Sale with a Loading Bay and Separated First Floor. The shop floor has an open area of approximately 3000 sqft, with no pillars or obstructions, and features a wall-to-wall glass front with an electric shutter. The loading bay opens into a large storage area with an electric shutter door, lift, and staircase to the first floor landing. The first floor includes large rooms with expansive storage areas and toilets, and has its own street front door entrance leading to spacious rooms throughout with a separate electricity supply. This property has ample space to be converted into a large HMO or residential accommodation, subject to planning permission. The local area is vibrant with multiple supermarkets, gyms, parks, shopping centres, and schools within 1.0 mile, and is well-connected with a train station 0.75 miles away and a bus station 0.30 miles away. This property is offered For Sale on a Freehold basis or there is a possibility of leasing, subject to agreeing terms.

insights

************

 Related properties

Nearby properties
3 bed terraced house for sale
TERRACED £ 475,000.00
6 bed detached house for sale
DETACHED £ 590,000.00
4 bed detached house for sale
DETACHED £ 570,000.00
6 bed end terrace house for sale
END_TERRACE £ 525,000.00
5 bed end terrace house for sale
END_TERRACE £ 500,000.00
Properties in same Property type
Land for sale
LAND £ 3,000,000.00
Land for sale
LAND £ 1,250,000.00
Land for sale
LAND £ 265,000.00
Land for sale
LAND £ 75,000.00
Land for sale
LAND £ 325,000.00
Agent Name: xxxx
Unlock Full Property Details!

Want to see the full address, agent contact, and more?

  • Full property address
  • Direct contact details for the agent
  • Exclusive photos and documents
  • Early access to new listings