Back to search results
1 Rooms 7 beds 3 bath

£ 75,000.00

Land for sale Sold/Delisted

Address: ************

More information

Auction: Yes
Market Status: Sold/Delisted
Schools: ************
Transport: ************
HMO Status: HMO Conversion
NEAR UNIVERSITY: NO (Dist: 8.12 miles)
NEAR TRAIN STATION: NO (Dist: 1.50 miles)
NEAR BUS STATION: YES (Dist: 1.00 miles)
NEAR HOSPITAL: NO (Dist: 5.30 miles)
About this property
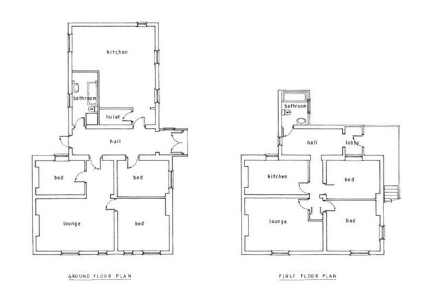
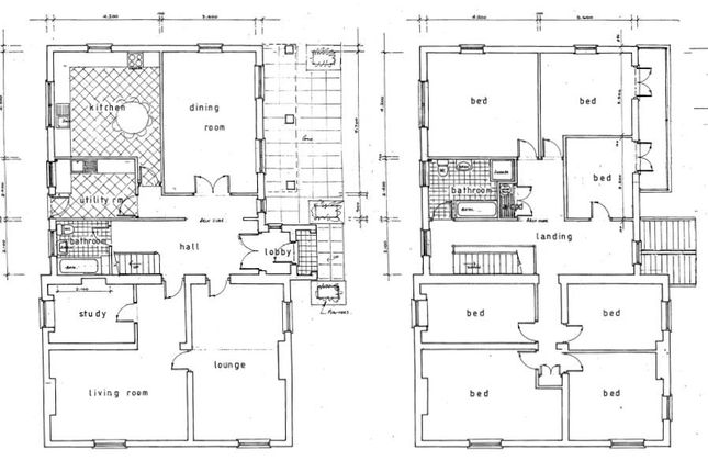
Freehold building plot of 0.37 acres with planning granted for a detached 7-bedroom house or 2 flats with a detached double garage. The property is sold with vacant possession and offers potential for HMO-style accommodation. Planning was originally granted in 1998, with a certificate of lawfulness issued in 2010. A more recent consent for three independent dwellings was refused, but this may present opportunities for a higher density scheme. Multiple supermarkets, gyms, parks, shopping centres, and schools are located within 1.0 mile. The property will be sold via live online auction.

insights

************

 Related properties

Nearby properties
7 bed detached house for sale
DETACHED £ 800,000.00
4 bed detached house for sale
DETACHED £ 375,000.00
6 bed detached house for sale
DETACHED £ 550,000.00
6 bed semi-detached house for sale
SEMI_DETACHED £ 410,000.00
4 bed terraced house for sale
TERRACED £ 375,000.00
Properties in same Property type
Land for sale
LAND £ 3,000,000.00
Land for sale
LAND £ 1,250,000.00
Land for sale
LAND £ 265,000.00
Land for sale
LAND £ 325,000.00
Land for sale
LAND £ 1,750,000.00
Agent Name: xxxx
Unlock Full Property Details!

Want to see the full address, agent contact, and more?

  • Full property address
  • Direct contact details for the agent
  • Exclusive photos and documents
  • Early access to new listings