Back to search results
  • EPC Certificate
Rooms 6 beds 2 bath

£ 789,950.00

6 bed terraced house for sale Sold/Delisted

Address: ************

More information

Council tax band: E
Auction: No
Market Status: Sold/Delisted
Schools: ************
Transport: ************
HMO Status: Existing HMO
NEAR UNIVERSITY: NO (Dist: 2.50 miles)
NEAR TRAIN STATION: YES (Dist: 0.75 miles)
NEAR BUS STATION: YES (Dist: 0.30 miles)
NEAR HOSPITAL: NO (Dist: 1.20 miles)
About this property
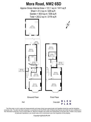
An impressive 6 Bedroom HMO Investment, currently let and producing a yearly rental income of £60,000. The property benefits from potential loft extension to increase rental return (subject to planning permission). It is presented over two floors and comprises six rooms, two fully fitted kitchens, two fully tiled bathrooms with a separate downstairs WC, and direct access to a private rear patio garden with a large garden outbuilding offering significant potential for multiple uses (subject to planning permission). The property is conveniently located within walking distance to local amenities, including multiple supermarkets, gyms, parks, and schools, and has excellent connectivity via nearby train and bus stations.

insights

************

 Related properties

Nearby properties
5 bed terraced house for sale
TERRACED £ 1,100,000.00
7 bed property for sale
NONE £ 850,000.00
5 bed terraced house for sale
TERRACED £ 795,000.00
5 bed terraced house for sale
TERRACED £ 850,000.00
6 bed semi-detached house for sale
SEMI_DETACHED £ 1,599,990.00
Properties in same Property type
4 bed terraced house for sale
TERRACED £ 139,995.00
7 bed terraced house for sale
TERRACED £ 550,000.00
4 bed terraced house for sale
TERRACED £ 280,000.00
5 bed terraced house for sale
TERRACED £ 600,000.00
5 bed terraced house for sale
TERRACED £ 560,000.00
Agent Name: xxxx
Unlock Full Property Details!

Want to see the full address, agent contact, and more?

  • Full property address
  • Direct contact details for the agent
  • Exclusive photos and documents
  • Early access to new listings